455 Norfolk Dr.

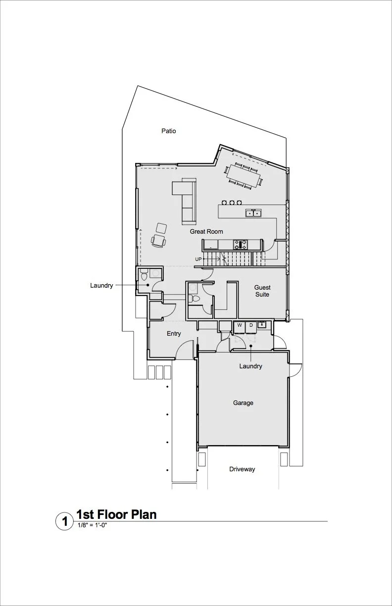
Property Details

  • 5 Beds

  • 3.5 Baths

  • 2,590 sq/ft

  • Built In 2016



Previous
Previous

451 Norfolk

Next
Next

459 Norfolk