459 Norfolk

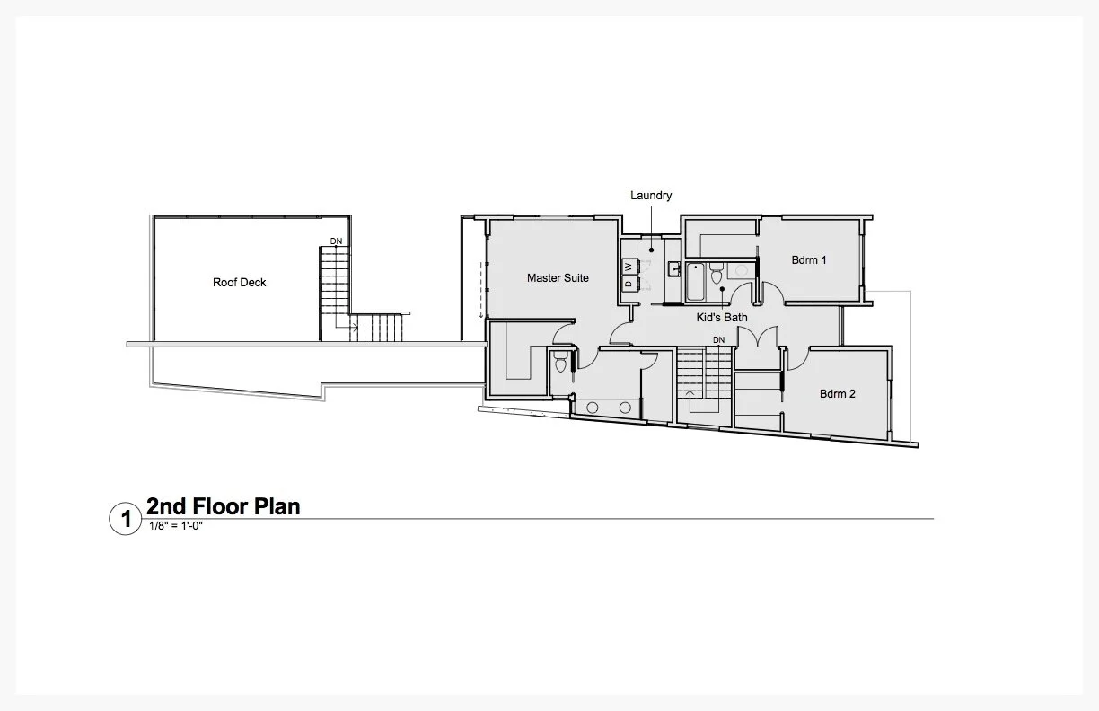
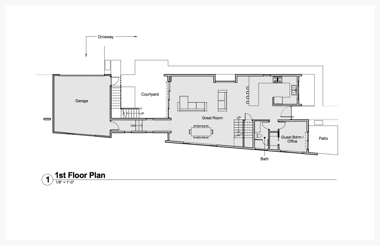
Property Details

  • 4 Beds

  • 3 Baths

  • 2,576 Sq/ft

  • Built In 2016



Previous
Previous

455 Norfolk